Stadtplanung

Informelle Planungen

  • städtebauliche / landschaftsplanerische Entwicklungskonzepte
  • städtebauliche Struktur- und Rahmenplanungen
  • städtebauliche Entwürfe
  • Entwicklung von Konversionsflächen
  • städtebauliche Sanierungen
  • Stadtgestaltungen
  • Verkehrsanlagen
  • Städtebauliche Beratungsleistungen

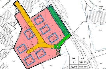
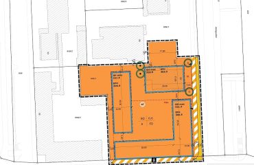
Bauleitplanung und Ortssatzungen

  • Flächennutzungspläne
  • Bebauungspläne
  • vorhabenbezogene Bebauungspläne
  • regionales Handlungsprogramm
  • Gestaltungssatzungen
  • Stellplatzsatzungen

Außerdem bieten wir mit unseren Kooperationspartner:innen Leistungen in der Landschaftsplanung an

Landschafts-/naturschutzfachliche Prüfung

  • landschaftsplanerische Beratungen
  • Landschaftspläne zum FNP
  • Grünordnungspläne
  • landschaftspflegerische Begleitpläne
  • Umweltverträglichkeitsprüfungen
  • Umweltberichte
  • Ökokonto
  • Eingriffs- Ausgleichsbilanzen
  • FFH - Verträglichkeitsprüfung
  • Pflege- und Entwicklungspläne
  • Monitoring

Gewässer

  • Gewässerentwicklungsplanungen
  • Gewässerausbau und Renaturierungen
  • Hochwasserschutz
  • Gewässerbewertungen
  • Regenwassermanagement